Nos avis clients
Nos avis clients
0
Réf : M367
Exclusif
Coup de coeur

PARIS IX - DROUOT / CADET

Paris (75009)
950 000 €

A propos de ce bien

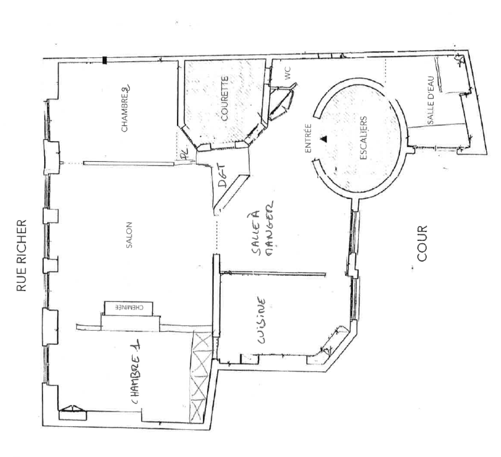
EXCLUSIVITE - APPARTEMENT TRAVERSANT RENOVE - ETAGE ELEVE - VUE CIEL - 2 CHAMBRES

Situé entre les Folies Bergère et le quartier Drouot, appartement traversant au 5ème étage d'un élégant immeuble d'époque Louis-Philippe.

Ce bien se compose d'un salon, d'une salle à manger, d'une cuisine séparée de la salle à manger par une verrière, de deux chambres, d'une salle de bains et de toilettes indépendantes.

Bien lumineux et entièrement rénové avec soin, dans un quartier vivant et prisé, à proximité immédiate des commerces de la rue Cadet, de nombreux transports en commun, des théâtres et musées.

Une cave complète ce bien.


Les informations sur les risques auxquels ce bien est exposé sont disponibles sur le site Géorisques

Descriptif du bien

TRAD_PAMPERO_Caracteristique Valeurs
Code postal 75009
Surface habitable (m²) 79,18 m²
Surface loi Carrez (m²) 79,18 m²
Nombre de chambre(s) 2
Nombre de pièces 4
Etage 5
Nombre de niveaux 1
Ascenseur NON
TRAD_PAMPERO_Caracteristique Valeurs
Nb de salle de bains 1
Cuisine Séparée
Mode de chauffage Gaz
Type de chauffage TRAD_TYPE_CHAUFF_CHAUDIERE
Format de chauffage Individuel
Interphone OUI
Balcon NON
Terrasse NON
Cave OUI
Exposition Nord
Année de construction 1836
TRAD_PAMPERO_Caracteristique Valeurs
Quote Part annuelle des charges 1 213 €
plan de sauvegarde NON
TRAD_PAMPERO_Caracteristique Valeurs
Prix de vente honoraires TTC inclus 950 000 €
Prix de vente honoraires TTC exclus 905 000 €
Honoraires TTC à la charge acquéreur 4,97 %
Charges 200 €
Taxe foncière annuelle 1 313 €
DPE GES
  • Commerces et santé
  • Loisirs
  • Ecoles
  • Transports
  • Pratique
Ce bien vous intéresse ?
Fieldset par défaut
Fieldset par défaut
Validation

* Champs obligatoires

Contacter l'agence
Validation
Les données recueillies sur ce formulaire sont utilisées par DROUOT Immobilier pour la gestion des clients de DROUOT Immobilier. Conformément à la loi Informatique et libertés, vous pouvez exercer votre droit d'accès aux données vous concernant et les faire rectifier et ou supprimer en contactant DROUOT Immobilier.