Nos avis clients
Nos avis clients
0
Réf : VAEI101
Exclusif
Nouveauté

LE MARAIS - Magnifique Duplex 3 chambres - Rue Vieille du Temple

Paris (75004)
750 000 €

A propos de ce bien

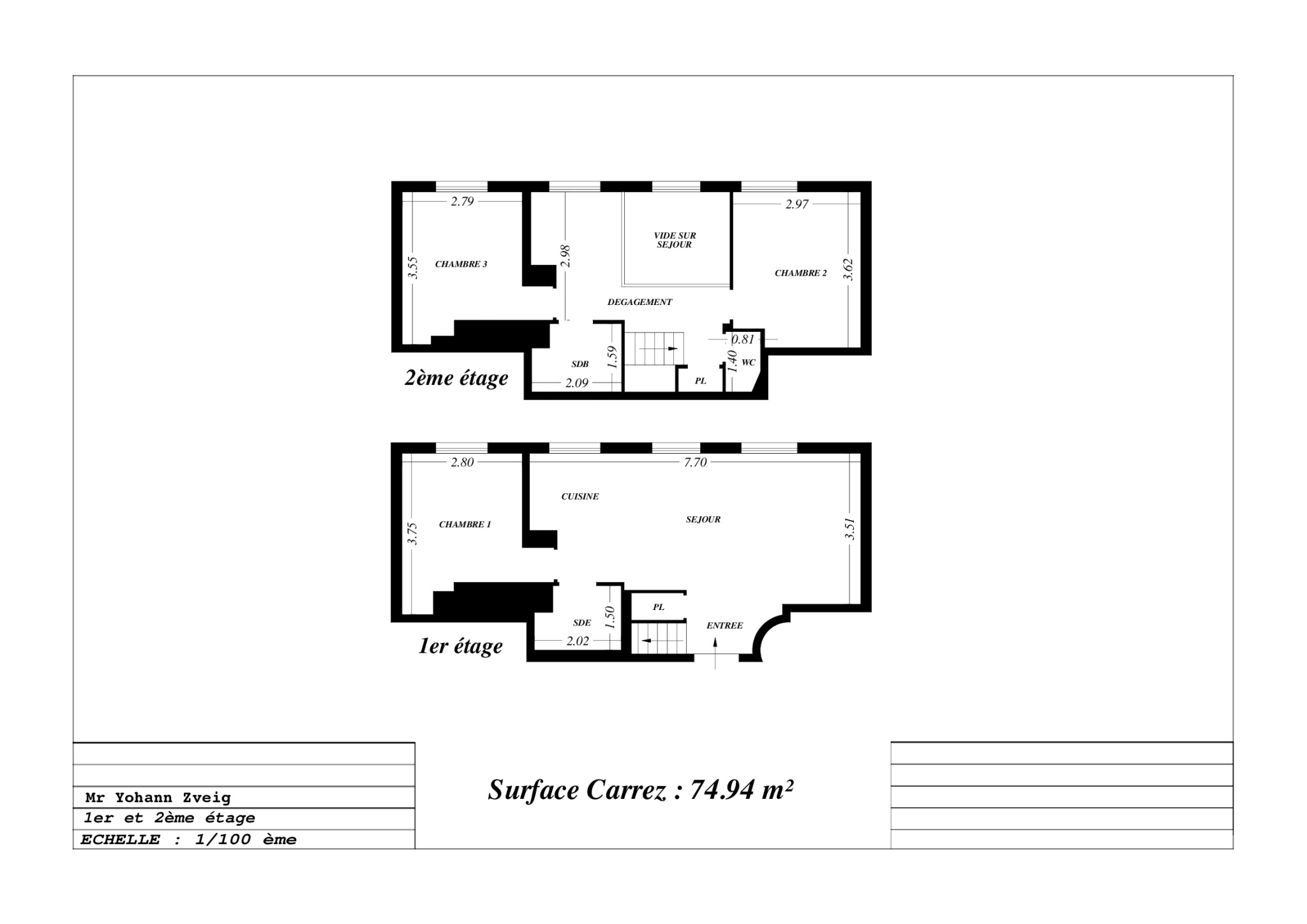
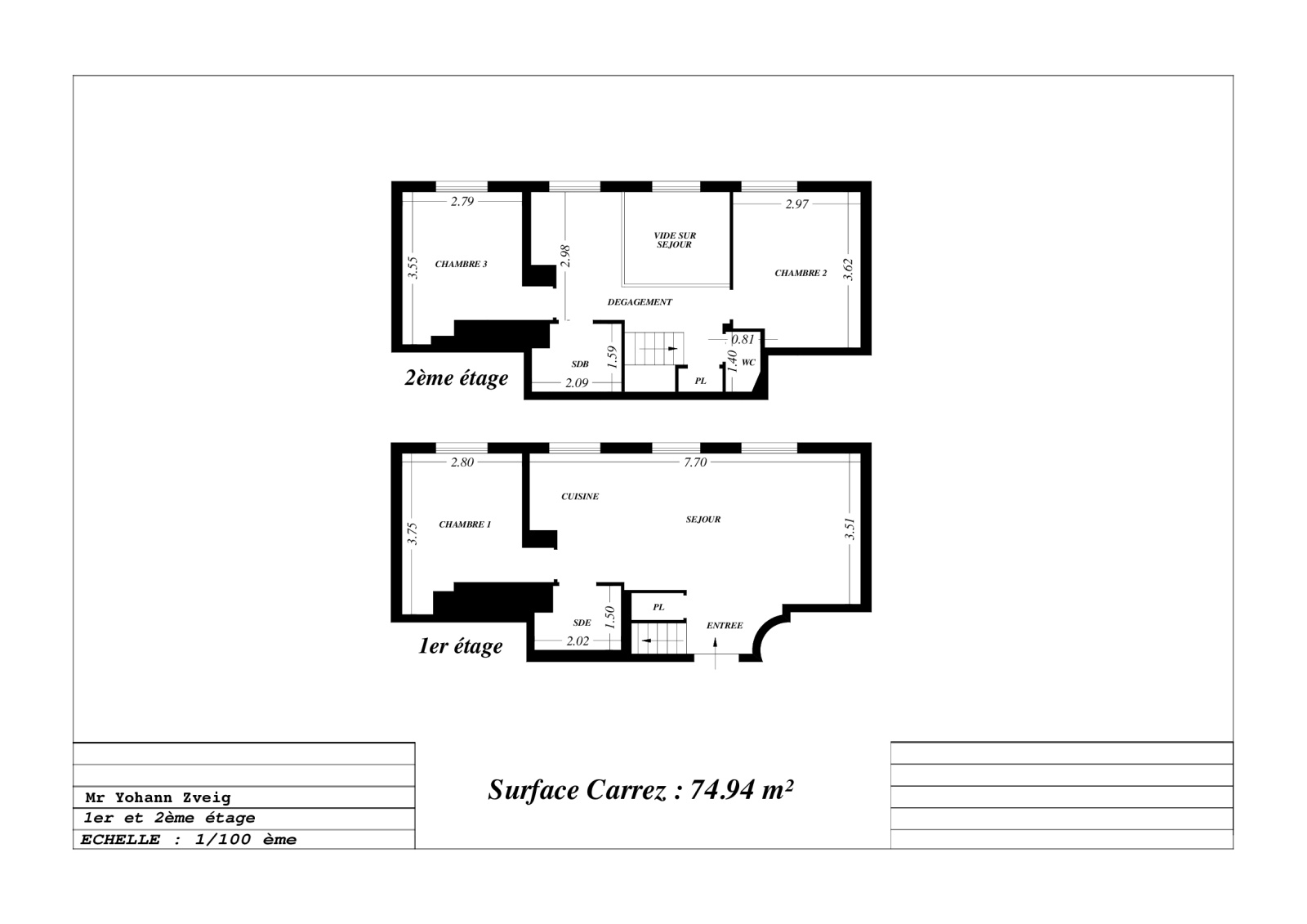
EXCLUSIVITE - LE MARAIS - Rue Vieille du Temple, Magnifique duplex de 74.94 m².
Au rez-de-chaussée, situé au premier étage de l'immeuble : une entrée s'ouvre sur un large espace de vie sans aucun vis-à-vis avec toit cathédrale vous apportant lumière et beaux volumes. S'ensuivent une jolie cuisine moderne et dinatoire entièrement aménagée et équipée, une chambre avec placard, une salle de douche avec toilettes et un rangement sous l'escalier. A l'étage, situé au deuxième étage de l'immeuble : deux autres chambres toutes deux avec du rangement, une salle de bains très fonctionnelle, une mezzanine avec coin bureau donnant sur la pièce de vie, des toilettes indépendantes et un autre rangement.
Le tout est en parfait état et se situe au sein d'une résidence sécurisée traversante avec gardien, parfaitement entretenue et très agréable. Possibilité d'acquérir un parking sécurisé en sous-sol (prix sur demande).
Cet appartement est classé en meublé de tourisme 3 étoiles, un classement d’État transmissible permettant de bénéficier d’un abattement fiscal sur les revenus générés et qui lui confère d'excellentes performances locatives (historique disponible sur plusieurs années).
Ce bien vous est proposé en vente aux enchères interactive par l'intermédiaire de Drouot.immo.
La date de la vente est prévue le 13/12/2025 à 11h.
Le prix affiché correspond au prix de départ, soit 750 000 € honoraires d'agence inclus.
La participation à la vente interactive est soumise à agrément préalable.
Renseignements complémentaires au 0612 535 736 ou fpascal@drouot.com

Descriptif du bien

TRAD_PAMPERO_Caracteristique Valeurs
Code postal 75004
Surface habitable (m²) 74,94 m²
Surface loi Carrez (m²) 74,94 m²
Nombre de chambre(s) 3
Nombre de pièces 4
Etage 1
Nombre de niveaux 2
Ascenseur OUI
Vue Sans vis-à-vis
TRAD_PAMPERO_Caracteristique Valeurs
Nb de salle de bains 1
Nb de salle d'eau 1
Cuisine Américaine
Type de cuisine Equipée
Mode de chauffage Electrique
Type de chauffage Convecteur
Format de chauffage Individuel
Interphone OUI
Visiophone OUI
Balcon NON
Terrasse NON
Cave NON
Exposition Sud-Est
Année de construction 1982
TRAD_PAMPERO_Caracteristique Valeurs
Copropriété OUI
Lot n° 208
nombre de lots 37
plan de sauvegarde NON
statut du syndic pas de procédure en cours
TRAD_PAMPERO_Caracteristique Valeurs
Prix de vente 750 000 €
Les honoraires d'agence seront intégralement à la charge du vendeur  
Charges 300 €
Taxe foncière annuelle 1 784 €
DPE GES
  • Commerces et santé
  • Loisirs
  • Ecoles
  • Transports
  • Pratique
Ce bien vous intéresse ?
Fieldset par défaut
Fieldset par défaut
Validation

* Champs obligatoires

Contacter l'agence
Validation
Les données recueillies sur ce formulaire sont utilisées par DROUOT Immobilier pour la gestion des clients de DROUOT Immobilier. Conformément à la loi Informatique et libertés, vous pouvez exercer votre droit d'accès aux données vous concernant et les faire rectifier et ou supprimer en contactant DROUOT Immobilier.